
ALDI Stores - Atherstone Head Office
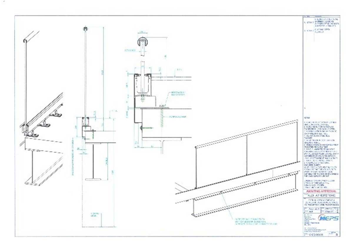
£290K - Completed April 2018 - Scope - Design, manufacture and installation of structural glass balustrades to two atrium staircases, office staircase and link bridge, complete with stainless-steel cladding
As one of ALDI Stores preferred suppliers for architectural metalwork we were contracted to design, manufacture structural glass balustrades in various areas complete with stainless steel cladding. This project involved extensive design work to ensure we achieved the high standard expected, whilst coordinating with other trades. We delivered a first class finish which has been commended by the Aldi Corporate Property Director as stated in the attached letter of thanks, which we were extremely proud to receive. From the success of this project and that of the north phase we have now been contracted by Aldi Stores on a number of projects and remain one if their preferred suppliers.